Bejelentkezés
Regisztráció
105
Címlap
Szponzorált cikk
Programajánló
Hasznos
Állás
Játék
Közélet
Aktuális
Kék hírek
Megkérdeztük
Törvényszéki hírek
Dolgos hétköznapok hősei - a szolgáltatásban
Dolgos hétköznapok hősei – az egészségügyben
Civil szervezetek a berettyóújfalui térségben
Szociális szervezetek
Kulturális szervezetek
Oktatási-nevelési szervezetek
Sportszervezetek
Polgárvédelmi szervezetek
Staféta
Lako-sokk
Gróf Tisza István Kórház
TAMA Hungary
Kultúra
Cikkek
Anno...
Mérlegképes történész- a világ humanoid szemmel
NézőPont
Oktatás
Cikkek
Dolgos hétköznapok hősei – az oktatásban
Sport
Cikkek
Bihari büszkeségeink
Életmód
Cikkek
Női lapozó
Heti ízpróba
Egészségpéntek
Biobanya
Harmónia-Egység-Egészség
Nem adom fel!
Az orvos válaszol
Otthon, édes otthon!
Térségünk hírei
Ártánd
Bakonszeg
Darvas
Komádi
Körösszegapáti
Magyarhomorog
Margitta
Mezősas
Nagykereki
Szentpéterszeg
Tépe
Újiráz
Váncsod
Turizmus
Helyi turizmus
Regionális turizmus
Országos turizmus
Turizmus a nagyvilágban
Podcast
Galéria
Archívum
Galéria
Archív weboldal
Ön itt van:
Kezdőlap
Közélet
Aktuális
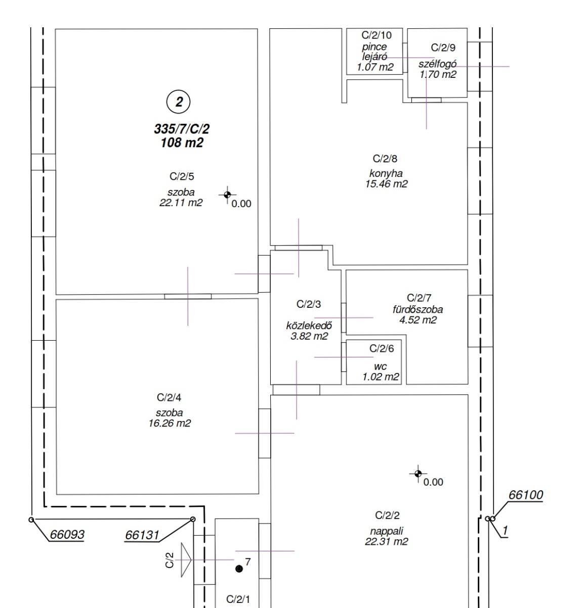
ELADÓ önkormányzati ingatlan - Herpály u.1.
Keresés
Patikák-Ügyelet
Háziorvosok-Körzeti fogorvosok
Egészségügyi alapellátások körzetbeosztása
Állatorvosi rendelők-Ügyelet
Hivatalok-Intézmények
Oktatási Intézmények
Kultúra-Szabadidő-Sport
Szolgáltatók-Bankok-Közlekedés
Települési támogatás
Aktív korúak ellátása
Közbiztonsági ügyelet Berettyóújfaluban
Városgazda
680
ELADÓ önkormányzati ingatlan - Herpály u.1.
Részletek
Írta:
berettyohir.hu
Készült: 2025. november 12.
Nagyításhoz kattints a képre!
Friss hírek
Választási eredmények - 2026
Lélekemelő dallamok és versek - zenés versfüzér a Költészet napján
„Meddig bírja a vezető?” – Tabuk nélkül beszélgettek a siker és az egészség egyensúlyáról a berettyóújfalui vállalkozók
A MÚLT AJÁNDÉKA, A HOLNAP ÍGÉRETE - Beszámoló a Vass Jenő óvoda és Bölcsőde komplex tehetség gondozó műhely februári programjáról
Befejeződött a Téglaparti temető kiszolgáló létesítményeinek fejlesztése
Dokumentumok
Felhasználási feltételek
Szerzői jogok (Copyright)
Impresszum
Médiaajánlat
Technikai ajánlás
Adatkezelési tájékoztató
Cookie Szabályzat
Copyright © 2024 berettyohir.hu. Minden jog fenntartva.